万花楼qm论坛一品楼品凤楼论坛qm,一品qm论坛官网,良家凤楼论坛最新帖子,2025广州qm论坛栖凤阁论坛(全国信息)

王工销往云南SCR11-500干式变压器历程

分享到:
文章来源:北京创联汇通电气 ????? 发布时间: 2019-06-26 10:22:15
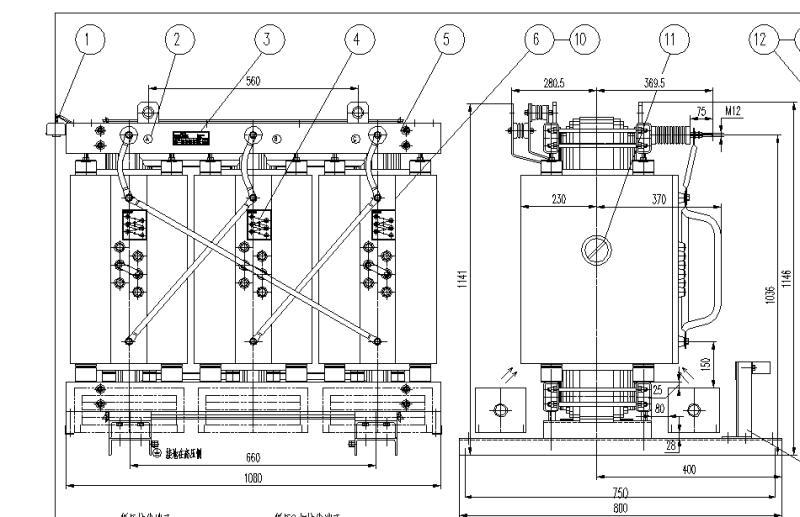
导读:王工销往云南SCR11-500干式变压器历程 今年三月份的一天韦总通过电话和我取得联系需要一台SCR11-500/10的变压器,通过沟通了解需求和要求给韦总报了价格和产品工艺韦总对我们质量大家

王工销往云南SCR11-500干式变压器历程
干式变压器
今年三月份的一天韦总通过电话和我取得联系需要一台SCR11-500/10的变压器,通过沟通了解需求和要求给韦总报了价格和产品工艺韦总对我们质量大家赞赏说和我们合作不会错的,因为项目周期较长所以当时定不下来我这边也是耐心的等待韦总通知,四月低的时候韦总需要建设基础基台可是怕到时候变压器和基础施工无法安装,这个问题我立即让技术做出来变压器和外壳的基础尺寸图,让韦总按照基础施工图施工绝对没问题的,随后韦总也让他们技术与我取得联系确认轨距通过沟通轨距没有问题,因为还有现成的配电柜通过沟通解决了接线口出线位置的问题,随后与韦总拟定合同修改合同然后签订合同然后汇定金,我这边安排生产韦总发货前提前给打招呼自己好安排尾款接货。


Totop

北京创联汇通电气设备有限公司 ???地址:北京市昌平区南邵镇北京风景67号院 ??? 京ICP备11019806号-1

干式变压器 油浸式变压器 箱式变电站 配电柜 特种变压器 地埋式变压器